東京都西東京市の住吉小学校に通える不動産一覧

  • 種別

  • 価格

  • 小学校徒歩

  • 建物面積

  • 間取り

1 件 / 全149件

  1. 1

チェックした物件をまとめて

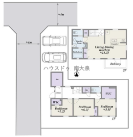
車2台並列駐車が可能な土地面積168㎡(約50坪)の全室南向き3LDKスウェーデンハウス☆

間取り
外観

7,780万円

 

所在地

東京都西東京市泉町5丁目

交通

西武池袋・豊島線 『ひばりケ丘駅』 まで徒歩18分
西武池袋・豊島線 『保谷駅』 まで徒歩17分

建物面積 102m2 間取り 3LDK 建物構造 木造
土地面積 168.17m2 築年月 2006年06月 学区 住吉小学校

担当者より~ お客様第一のお店作りを。~ 私たち「ハウスドゥ」は、無理な営業はしません。 お客様のご要望に真摯に耳を傾け、本当に必要とされている情報をより迅速に、より的確にご提供できるよう全力を尽くしています。

  • パノラマ写真
  • リフォーム済
  • 駐車場あり
  • 写真5枚以上
  • オープンハウス開催

もっとたくさん物件がみたい!という方へ

店頭ではHPに掲載できない物件を併せて
428件をご案内できます!

来店予約して物件を探す お気軽にご来店下さい!

店頭で

ご希望にマッチした物件や、新着・値下げ情報を
即日メールにてお届けします!

マイページに希望情報を登録する 新着物件メールもお届け!

Webで

1 件 / 全149件

  1. 1

どんな街か、もっと知りたい!
地元密着のスタッフがお応えいたします!

来店予約して物件を探す お気軽にご来店下さい! スタッフ

ページトップ

ページトップ